• 340,000 €

SOLAR EDIFICABLE


  • Superficie
    240 m2
  • Parcela
    m2
  • Habitaciones
  • Baños

Descripción

¡SE VENDE SOLAR EDIFICABLE EN CIUTADELLA!
  • Zona: Plaça de l'Empordà/Joan de Borbó
  • 240 m2 de superficie solar
  • Edificable. Hay una simulación de proyecto con lo que se podría construir:

    - Total de m2 edificables: 1.111,96 m2
    - Sótano de 235,03 m2.
       Allí se ubicarían las 8 plazas de parking correspondientes a cada piso
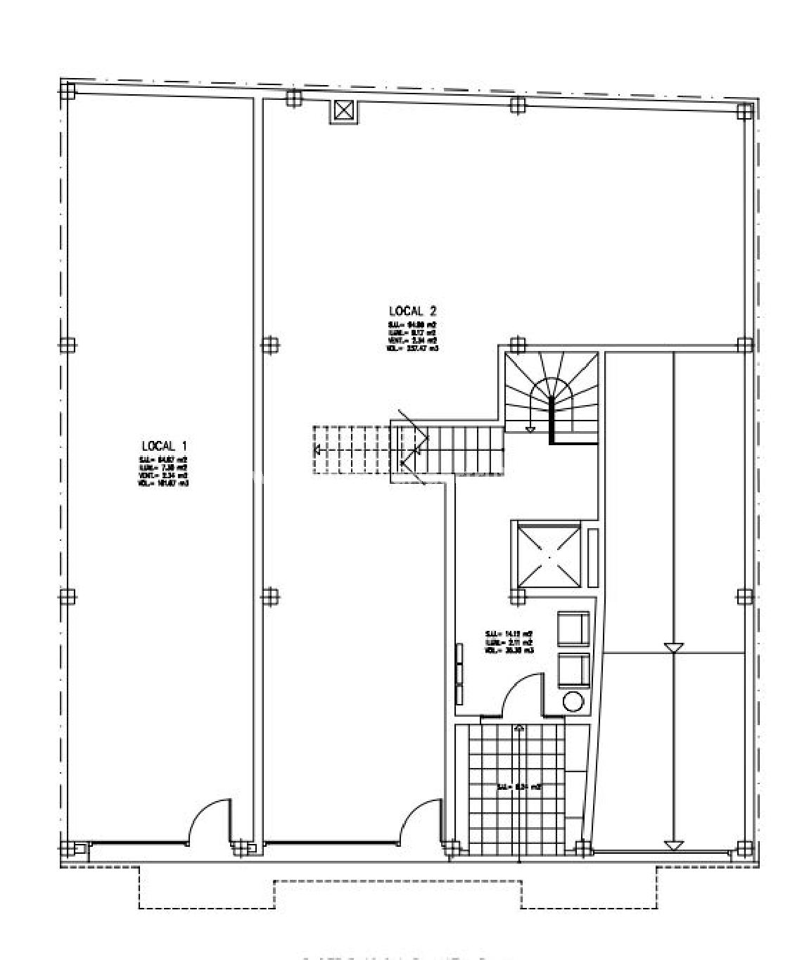
    - Planta baja de 247,10 m2. 
       Allí se ubicarían 2 locales comerciales de 72,01 y 104,21 m2, un garaje de 38,17 m2 y el recibidor y escalera para acceder a las viviendas situadas en primera y segunda planta.
    - Primera planta de 244,88 m2.
       En esta planta, se encontraran tres viviendas con la siguiente distribución:
       · 1º A: 74,40 m2 útiles + 3 hab + 2 baños + cocina + salón comedor + patio int. + terraza cubierta interior + terraza exterior
       · 1º B: 47,51 m2 útiles + 2 hab + 1 baño + cocina + salón comedor + terraza
       · 1º C: 73,05 m2 útiles + 3 hab + 2 baños + cocina + salón comedor + patio interior + terraza cubierta interior + terraza exterior
    - Segunda planta de 244,88 m2.
       En esta planta se encontraran tres viviendas y dos accesos a los pisos de la planta ático.
       La distribución de los pisos en planta sería la siguiente:
       · 2º B: 69,86 m2 útiles + 2 hab + 2 baños + cocina + salón comedor + terraza interior + terraza exterior
       · 2º C: 47,51 m2 útiles + 2 hab + 1 baño + cocina + salón comedor + terraza exterior
       · 2º D: 73,05 m2 útiles + 3 hab + 2 baños + cocina + salón comedor + patio int + terraza cubierta interior + terraza exterior
    - Planta ático de 140,07 m2.
      En esta planta se encontraran dos áticos con la siguiente distribución:
      · 2º A: 67,07 m2 útiles + 3 hab + 2 baños + cocina + salón comedor + 2 terrazas (22,88 + 19,02)
      · 2º E: 62,09 m2 útiles + 3 hab + 2 baños + cocina + salón comedor + 2 terrazas (22,37 + 19,57)
Precio: 340.000€

Para cualquier otra información y/o consulta,
¡No dude en contactarnos!

Características