APTO CON LICENCIA TURÍSTICA


  • Superficie
    41 m2
  • Parcela
    m2
  • Habitaciones
    1
  • Baños
    1

Descripción

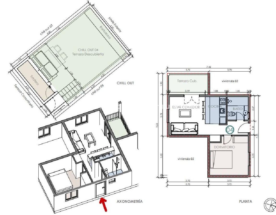
¡SE VENDE APARTAMENTO CON LICENCIA TURÍSTICA EN CALA'N BLANES!
  • 40'70 m2 construidos en primera planta
  • 1 habitación doble
  • 1 baño completo
  • Cocina abierta
  • Salón comedor
  • Terraza cubierta de 7'07 m2
  • Terraza descubierta tipo chill out en planta baja de 37'44 m2
  • Parking comunitario
  • Piscina comunitaria de 58 m2
  • Licencia turística
Precio: 255.000 €

Para cualquier otra información y/o consulta,
¡No dude en contactar con nosotros!

Características