• 163,000 €

GARAJE EN CIUTADELLA


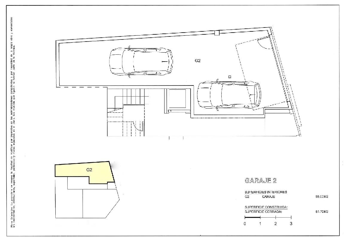
  • Superficie
    55 m2
  • Parcela
    m2
  • Habitaciones
  • Baños

Descripción

¡SE VENDE GARAJE A PIE DE CALLE EN CIUTADELLA!
  • 61 m2 construidos
Precio: 163.000€

OBSERVACIÓN: OBRA NUEVA

*Obras de construcción de este edificio empezarán en breve y resultarán en un edificio compuesto de garaje a pie de calle y viviendas distribuidas entre plantas baja y segunda. Fecha indicativa para término de obras: 2027 aproximadamente (consultar agencia para información actualizada).

Para cualquier otra información y/o consulta,
¡No dude en contactar con nosotros!

Características